YE5-80~355(IP54~IP55)系列小型低壓三相異步電動機是我公司的新一代產品,是在高--效電機YE4電機的基礎上經過更加嚴格的節能改造研發而成的新一代節能三相異步電動機,具有設計新穎、造型美觀、噪聲低、轉矩高、啟動性能好,結構緊湊、使用維護方便等特點。其效率達到GB18613-2020《中小型三相異步電動機能效限定值及能效等級》中的1級能效標準,預計將很快通過中國質量認證中心的節能產品認證,目前處于前期宣傳階段。更多YE5高效節能電機資料,請前往官網:https://www.xiansimo.com/gaoxiaojienengdianji/show/74.html
本系列電動機的功率等級、電氣性能和安裝尺寸及公差均符合***GB755《旋轉生能》國際電工委員會標準IEC34-1《旋轉電機定額和性能》和機械行業標準GB/T4772.1等。本系列電動機的外殼防護等級根據GB4942.1和IEC34-5《旋轉電機外殼防護等級》的標準本系列電動機的冷卻方法根據GB/T1993和IEC34-6《旋轉電機冷卻方法》的標準為IC411。
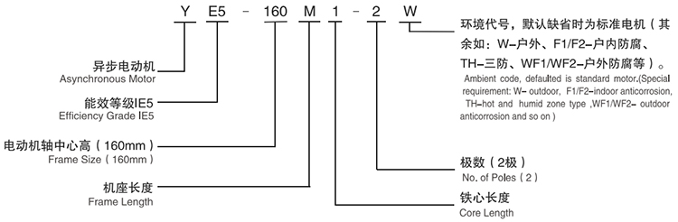
YE5電機型號說明:

                           